
In esclusiva! Nella zona prestigiosa e ricercata di Biganzolo, a solo 800 mt. dalla passeggiata lago e dal centro di Intra, vi propongo in vendita tre ville indipendenti in fase di costruzione.
Certificazione energetica A/4. Risparmio energetico di ultima generazione.
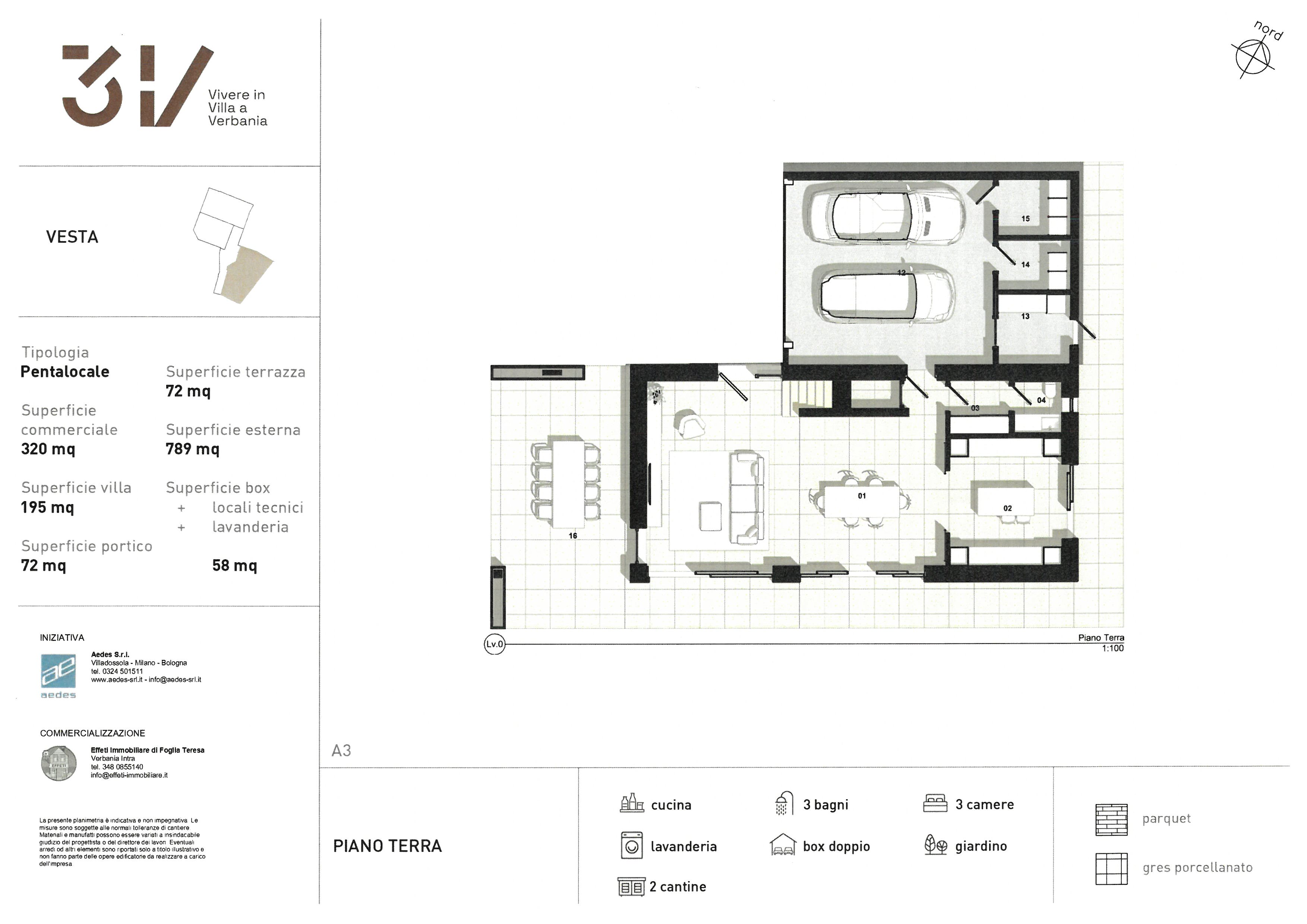
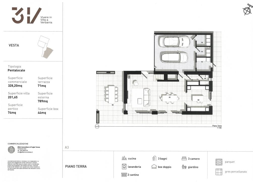
Le ville Venere, Verbena e Vesta sono disposte su due piani, con annessi ampissimi terrazzi e porticati coperti.
Hanno ampio giardino circostante, dove volendo si potrebbe creare una piscina.
Doppio garage,
Ti proponiamo il taglio interno come da progetto, ma internamente puoi scegliere il taglio che piu’ ti aggrada. Nel contempo puoi creare una parete con il camino di ultima generazione.
Il capitolato e’ ricchissimo e puoi spaziare nella scelta
la strada per accedere alle tre ville e’ riservata solo per le ville ed e’ illuminata.
Dimensioni:
VILLA VESTA:
MQ. 320, PORTICO MQ.72, TERRAZZI MQ. 72 GIARDINO MQ. 789, BOX , LOCALI TECNICI, LAVANDEIA , MQ. 58;
Altre informazioni in Agenzia. Venite a trovarci a intra, piazza Matteotti 21,
oppure chiamate al 3480855140