
In esclusiva!!!!!!!!!! A Madonna di Campagna a confine tra Pallanza e Suna, in palazzina di poche unita', vi propongo in vendita 103 mq. di appartamento piu' due balconi di cui uno molto ampio e ben esposto al sole.
L'appartamento e' sito al piano secondo e accessibile anche con ascensore.
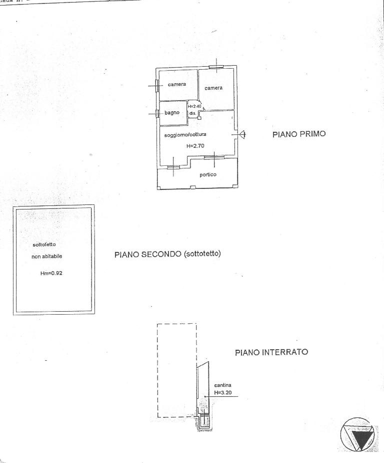
composizione: ingresso, soggiorno di generose dimensioni, due camere matrimoniali, un bagno.
Al piano terra: cantina e box
prezzo: Euro 228.000,00 ape Cl. E
Super consigliato. Posizione strategica, tranquilla e immersa nel verde. Incantevole apertura su tutti i lati, esposizione al sole tutto il giorno.
Dimensioni di ogni locale davvero notevoli. Tagli di ogni stanza del c'era una volta, quando i locali non erano rosicati.
Vi aspetto per visionare insieme.
Chiamate allo 0323 408050.